MOTO.com.ua
events
0
Події
Погода: Київ
14.05, 06:46
30
+8 °С
Вітер: 3 м./с., Пн-З
НовиниФорумОголошенняЖурналКаталогПривалКалендар
Реєстрація Вхід
?
Увійти
Допоможіть Армії, наближайте нашу Перемогу!
Форум
Шукати

Двигателя 1E40QMB (аналог 3KJ) и подобные - ремонт, обслуживание, эксплуатация

Переглядів: 481532
13.06.2009 р.
answerview
Тема в большей части посвящена китайско-украинской технике Futong RF50S-18 JAZZ. Но также активно ведём обсуждение и остальных 2т china scooter с yamaha-подобным мотором


Уважаемый пользователь-если вы в этой ветке впервые порулите немножко поиском возможно ответ на Ваш вопрос уже присутствует в теме.
В данный момент ведётся подотовка сылок на основные вопросы для выноса в шапку темы.

В ТЕМЕ НЕ ФЛУДИТЬ!

Все сообщения такого рода будут удалятся немедленно без предупреждения их авторов.


Тюнинг китайских 2Т 50cc двигателей 1E40QMB и подобных (аналог 3KJ Yamaha)


Материал "на заметку":
В 1архиве схема электропроводки
В 2рахиве-обслуживание двигателя 3KJ(аналог даного мотора установлен у нас)
В 3архиве-обслуживание карба.
[url=scootworld.pp.ua]http://scootworld.pp.ua
Заходите,добавляйте в закладки! В ближайшее время будет полнейший в Украине каталог скутер техники!
Змінено: 22.01.2012 р., IzoBara
Прикріплені зображеннявідкрити у галереї
Прикріплені файли
zip
40.58 кБ.
rar
3.48 мБ.
rar
1.28 мБ.
like
good
bad
shockingly
1234567••54
13.06.2009 р.
answerview
Итак пробег на сегодня  7700 км:
-заменена поршневая(5845км пробега-моя ошибка!совсем не следил за воздушным фильтром);
-переварена траверса крепления двигателя (6287 км пробега-просто заводской брак,одна из проушин была с трещиной);
-заменен 4 коммутатор;
-установлена музыка,кофр;
-заменен стоковый сигнал на 2 улитки;
-заменены сальники везде(7135км пробега)
[url=scootworld.pp.ua]http://scootworld.pp.ua
Заходите,добавляйте в закладки! В ближайшее время будет полнейший в Украине каталог скутер техники!
Змінено: 28.07.2009 р., IzoBara
Прикріплені зображеннявідкрити у галереї
like
good
bad
shockingly
27.07.2009 р. відповів для IzoBara  
answerview
Купил б/у, пробег был 2800. Сейчас на одометре 3100. Проблемы в основном косметические- трещины по пластику, отломлено заднее крыло.
Двигатель 1e40qmb радует, без глюков. Уже катались вдвоем. Тянет не так быстро, но уверенно тянет.
В общем скут для своей роли Скутера в городе нравится и во всем устраивает. Чего и вам желаю 01_smile
like
good
bad
shockingly
27.07.2009 р.
answerview
немного не радует мягкий задний амортизатор и низкий просвет. обдумываю как побороть.

хочу врезать часы или велокомп с часами, пока еще не определился. Скажите, тросик спидометра тяжело проворачивается?

На сайте футонга нашел модельку, которая ближе к дефианту чем к футонгу %)
Змінено: 27.07.2009 р., Victor99
like
good
bad
shockingly
27.07.2009 р. відповів для Victor99  
answerview
По поводу влокомпа не знаю стоит ли...?А маленький клиренс легко исправить большим и желательно гидравлическим аммортизатором.По поводу запчастей проблем в Никополе нет,думаю и в Киеве тоже не будет...А по ремонту если чё спрашивай подскажу.
[url=scootworld.pp.ua]http://scootworld.pp.ua
Заходите,добавляйте в закладки! В ближайшее время будет полнейший в Украине каталог скутер техники!
like
good
bad
shockingly
27.07.2009 р. відповів для IzoBara  
answerview
По поводу велокомпа у меня три довода: часы, точнее километраж, не будет тросика

амморт это нужно. я уже 2 раза глушак отбивал, неприятно получается.
Кстати, с глушителями к нашему двиглу нет вариантов, ну чтобы труба не по земле была?
Змінено: 27.07.2009 р., Victor99
like
good
bad
shockingly
27.07.2009 р. відповів для IzoBara  
answerview
А чего сальники поменял? И еще вопросец... Когда едешь на нем по кочкам и ямкам постукивания в районе заднего колеса не слышно?
Змінено: 27.07.2009 р., Green
like
good
bad
shockingly
27.07.2009 р. відповів для Green  
answerview
Помните тему про "хлопок и заглох".Мы ещё думали что дело в коммутаторе.Так вот тогда вырвало сальник со стороны вариатора.Я тогда долго ковырял скут искал причину аж пока не добрался до сальника со стороны генератора-там пропотевало масло вот и перебрался на сторону вариатора-думаю взглану ка я как там дела.Вообщем затолкал старый и на нём ещё с километров 200 проездил потом решил поменять дабы не стать где-то.
По поводу постукивания-не слышноЕсли бы по точнее где стучит?
Немного фото
[url=scootworld.pp.ua]http://scootworld.pp.ua
Заходите,добавляйте в закладки! В ближайшее время будет полнейший в Украине каталог скутер техники!
Змінено: 28.07.2009 р., IzoBara
Прикріплені зображеннявідкрити у галереї
like
good
bad
shockingly
27.07.2009 р. відповів для IzoBara  
answerview
Кстати не задумывались как увеличить обьём "унитаза"
[url=scootworld.pp.ua]http://scootworld.pp.ua
Заходите,добавляйте в закладки! В ближайшее время будет полнейший в Украине каталог скутер техники!
like
good
bad
shockingly
27.07.2009 р. відповів для IzoBara  
answerview
Интересные дела... А у меня выдавило сальник на первичном валу редуктора. Наверно кто-то эти машинки плохо собирает...
like
good
bad
shockingly
27.07.2009 р. відповів для Green  
answerview
Кстати у меня тоже он был уже на грани выхода из строя.Вобщем поменял все сразу дабы не лазить по несколько раз
[url=scootworld.pp.ua]http://scootworld.pp.ua
Заходите,добавляйте в закладки! В ближайшее время будет полнейший в Украине каталог скутер техники!
like
good
bad
shockingly
27.07.2009 р. відповів для IzoBara  
answerview
Во... так вот у меня, вскоре после замены сальника начало что-то подстукивать в редукторе на кочках - по робной дороге все ок. Подшипники в норме. Что стучит неизвестно. Даже как бы не стучит а клацает негромко. До 4000 пробега этого не было.
like
good
bad
shockingly
27.07.2009 р. відповів для Green  
answerview
А Вы не пробовали имитировать кочки(поставить на центральную ножку и за багажник погупать об пол задним колесом)и послушать где стучит?
[url=scootworld.pp.ua]http://scootworld.pp.ua
Заходите,добавляйте в закладки! В ближайшее время будет полнейший в Украине каталог скутер техники!
Змінено: 27.07.2009 р., IzoBara
like
good
bad
shockingly
27.07.2009 р. відповів для IzoBara  
answerview
Пробовал. Ни какого стука, даже если сильно лупить колесом о землю. Эффект есть только на заведенном двигателе и работающей трансмиссии. Нечто подобное я уже слышал на старой Хонде Дио... А чего ты на ВЫ обращаешься??? Я так себя стариком чувствую! 17_wink
like
good
bad
shockingly
27.07.2009 р. відповів для Green  
answerview
Ну как-то не удобно старше Вы меня,да на много 04_blush Может всё-таки в редукторе дело?Мож стоит посмотреть шестерёнки?Мож где-то люфт?
[url=scootworld.pp.ua]http://scootworld.pp.ua
Заходите,добавляйте в закладки! В ближайшее время будет полнейший в Украине каталог скутер техники!
like
good
bad
shockingly
27.07.2009 р. відповів для IzoBara  
answerview
Не так уж и на много!  01_smile Завтра буду разбирать смотреть! 20_drinks
like
good
bad
shockingly
27.07.2009 р.
answerview
парни,а нет часом у кого нормального каталога деталей? а то этот exe-шный тормоз дикий и картинки страшные
Прикріплені зображеннявідкрити у галереї
like
good
bad
shockingly
27.07.2009 р. відповів для Victor99  
answerview
Говорите что Вам надо.Скажу цену и всё остальное.
Кстати посмотрел на фот и вспомнил,что я ещё сидуху перетянул.Кот подрал родную оббивку.
А внешне он у Вас отлично выглядит
И ещё вопрос...Кто знает что это такое(на фото)?
Значит фишка с проводами замкнуто чорным проводом два контактаесли снять при заведёном двигателе конектор с чёрным проводом то не глушится двиг даже при выключеном зажигании.Только ставлю коннектор назад-двиг глохнет.
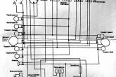
И ещё.У кого-то есть электросхема на наш апарат?
[url=scootworld.pp.ua]http://scootworld.pp.ua
Заходите,добавляйте в закладки! В ближайшее время будет полнейший в Украине каталог скутер техники!
Змінено: 27.07.2009 р., IzoBara
Прикріплені зображеннявідкрити у галереї
like
good
bad
shockingly
28.07.2009 р. відповів для IzoBara  
answerview
И ещё.У кого-то есть электросхема на наш апарат?
сорри за качество, телефоном снял
Прикріплені зображеннявідкрити у галереї
like
good
bad
shockingly
28.07.2009 р. відповів для Victor99  
answerview
Спасибо большущее!!!Я нигде не мог найти эту схемку.Сделал бы +1 к рейтингу,но ещщё не могу менять его...
[url=scootworld.pp.ua]http://scootworld.pp.ua
Заходите,добавляйте в закладки! В ближайшее время будет полнейший в Украине каталог скутер техники!
like
good
bad
shockingly
28.07.2009 р. відповів для Victor99  
answerview
Если бы ещё разшифровочку с цветами проводов-было бы вобще супер!!!
[url=scootworld.pp.ua]http://scootworld.pp.ua
Заходите,добавляйте в закладки! В ближайшее время будет полнейший в Украине каталог скутер техники!
like
good
bad
shockingly
1234567••54
© 2001-2026, MOTO.com.ua - все про мотоцикли та скутери!   Зворотній зв'язок   Про нас   Реклама на сайті   Магазин