MOTO.com.ua
events
0
Події
Погода: Київ
23.05, 21:36
32
+19 °С
Вітер: 3 м./с., Півн
НовиниФорумОголошенняЖурналКаталогПривалКалендар
Реєстрація Вхід
?
Увійти
Допоможіть Армії, наближайте нашу Перемогу!
Форум
Шукати

Двигателя 1E40QMB (аналог 3KJ) и подобные - ремонт, обслуживание, эксплуатация

Переглядів: 482415
13.06.2009 р.
answerview
Показати повідомлення
Тема в большей части посвящена китайско-украинской технике Futong RF50S-18 JAZZ. Но также активно ведём обсуждение и остальных 2т china scooter с yamaha-подобным мотором


Уважаемый пользователь-если вы в этой ветке впервые порулите немножко поиском возможно ответ на Ваш вопрос уже присутствует в теме.
В данный момент ведётся подотовка сылок на основные вопросы для выноса в шапку темы.

В ТЕМЕ НЕ ФЛУДИТЬ!

Все сообщения такого рода будут удалятся немедленно без предупреждения их авторов.


Тюнинг китайских 2Т 50cc двигателей 1E40QMB и подобных (аналог 3KJ Yamaha)


Материал "на заметку":
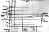
В 1архиве схема электропроводки
В 2рахиве-обслуживание двигателя 3KJ(аналог даного мотора установлен у нас)
В 3архиве-обслуживание карба.
[url=scootworld.pp.ua]http://scootworld.pp.ua
Заходите,добавляйте в закладки! В ближайшее время будет полнейший в Украине каталог скутер техники!
Змінено: 22.01.2012 р., IzoBara
Прикріплені зображеннявідкрити у галереї
Прикріплені файли
zip
40.58 кБ.
rar
3.48 мБ.
rar
1.28 мБ.
like
good
bad
shockingly
1••46474849505152••54
23.04.2015 р. відповів для Nikanor  
answerview
давайте мы пойдем последовательно. 3 ролика - меньший вес. насколько я понял - они показали наилучщий вариант. идем дальше: вы утяжелили ролики (а двигло и так не тянуло) -результат хуже. вывод: распределить нагрузку на крышку рвномерно. отседова лишь одно она ум приходит: методом "научного тыка" сбалансировать все 6 роликов (больше соприкосновения -меньше пробуксовки)
3 ролика -ваиант лдя поверки. но в ежедневном использовании чревато. как по мне- я бы облегчил до своего уровня (мощности двигателя)
Любіть Україну, як сонце, любіть,
як вітер, і трави, і води,
в годину щасливу і в радості мить,
любіть у годину негоди!
like
good
bad
shockingly
23.04.2015 р.
answerview
На трассе скутер разгонялся до 70км с горки , по городу легко набирал 50км.Возвращаясь с города домой ехал на подьем больше, но 50км по ровному  скутер делал , даже с пассажиром и сумкой ,   на подьем  40км в час.

Расход бензина- 15км прокатил  - с пассажиром,с горки сам- скорее расход повышенный, так как ехал  больше на весь газ, по красной полосе на спидометре.Бензин долью и можно вычислить точно.

Дома испытывая скутер катаясь по улице скорее не фатало длины улицы чтобы разогнаться , получается ,очень быстро мой скутер не разгоняется на трех найденных  роликах с Баотиона. 45_smoke
я мотолюбитель
like
good
bad
shockingly
23.04.2015 р. відповів для olegsuzuki  
answerview
Когда уже проделана какая то  работа  и появился результат, то теперь можно  критиковать и заявлять, что можно купить в магазине.... Если бы я разобрал движек в поиске косяков сборки  и поломал кольцо поршневое и оно бы улетело вместе со снятым стопором кудато в середину движка, то были бы другие комментарии ...Но если  ближе к  роликам, то продавалка мне ни разу  не предлагала ролики, только вариаторы  с дио и наверное других не тех моделей.
 А так у меня  три ролика на образец  есть и три ролика в скутере.Скутер в рабочем ,не разобранном состоянии...
Хотя шесть роликов лучше, мне кажется  или даже я почти уверен- тише движек работает с шестью роликами.
   Я даже катясь с тремя роликами,накручивая газулю пару раз  непроизвольно оглядывался- откуда шум появился-какая техника догоняет  для обгона или вертолет торохтит над головой, но ничего не было  подобного, просто я испытывал скутер
я мотолюбитель
Змінено: 23.04.2015 р., Nikanor
like
good
bad
shockingly
23.04.2015 р. відповів для Nikanor  
answerview
Когда уже проделана какая то  работа  и появился результат, то теперь можно  критиковать и заявлять, что можно купить в магазине....
   Я даже катясь с тремя роликами,накручивая газулю пару раз  непроизвольно оглядывался- откуда шум появился-какая техника догоняет  для обгона или вертолет торохтит над головой, но ничего не было  подобного, просто я испытывал скутер
      та я ж не критикую.......      по поводу шума, может на 3 роликах двигатель чуток * перекручивает* 06_question   взвесить бы один ролик, чтоб знать вес.  было бы проще подобрать вес 6 роликов.   по поводу 3 или 6 ???   не скажу.  мнения расходятся.   в Летсе с завода стоит 3 ролика. выше про это уже упоминали.  была бы возможность еще поиграться пружиной торка и пружинками сцепы.....  можно было бы добиться другой динамики.   как мне кажется, ролики надо чуток тяжелей. 06_question
like
good
bad
shockingly
23.04.2015 р. відповів для Nikanor  
answerview
Сделайте фото которые я просил.Какие размеры роликов-ширина и внешний диаметр?А ради эксперимента тяга лучше  на 3 или на 6 роликах.?
ПРОДАМ ЗАПЧАСТИ НА Honda AF-34-35,б/у. в личку
like
good
bad
shockingly
23.04.2015 р. відповів для jaimond  
answerview
Сделайте фото которые я просил.Какие размеры роликов-ширина и внешний диаметр?А ради эксперимента тяга лучше  на 3 или на 6 роликах.?
   ролы там скорей всего ямаховские.   15 х 12.
like
good
bad
shockingly
24.04.2015 р. відповів для Nikanor  
answerview
в свое время на своем "Вайпер Винд 4т " я долго игрался с роликами и ремнем ,  имеет значение все и вес роликов и ширина ремня  и длинна ремня и конус переднего вариатора и пружина  торка  и пружинки сцепы , но есть нюансы , например если поставить задний варик от хонды  а передний оставить родной , получится очень хороший результат в плане скорости и динамики , вот только прощай ремешок , износ ремня увеличится в разы , с роликами можно играться довольно безопасно , лучше конечно подобрать 6 роликов , самостоятельная доработка роликов не приемлема , сверление , заливка свинцом итд это все только в виде эксперимента , вес всех роликов должен быть строго одинаковый , иначе будет дисбаланс варика ,

звук и вибрации ,на легких роликах могут быть выше ,по тому что ремень дольше остается на внутренней части варика  , это вроде как на яве поставить переднюю звездочку по меньше а заднюю по больше ,
взвесьте один ролик и тогда уже можно будет представить с чем имеем дело
Одна ! Єдина ! Соборна Украіна !!!

если хочешь выразить свою благодарность ставь + , посты типа (спасибо помог ) или (ты был прав ) только форум засоряют
like
good
bad
shockingly
24.04.2015 р. відповів для jaimond  
answerview
Мастер-ломастер заменил карбюратор на скутере и поршневую.Карбюратор, на скутере стоявший он признал нерабочим, поскольку чего то с него бенз тек и типа игла не держала- поставил с магазина некондицию ,с залитым отверстием  под  вакуумнасос.(Карб родной без бензонасоса переливал и был чуть грязным). Я верил мастеру- отдал 700гр за запчасти с магазина и 300гр за работу.Скутер лучше ехать не стал.Я понял, что  мастер -ломастер  не угадал .Я понял поздно...Можете умничать. 12_cray  37_fool
я мотолюбитель
Змінено: 24.04.2015 р., Nikanor
like
good
bad
shockingly
24.04.2015 р.
answerview
https://yadi.sk/i/NuqG2FCagCqbx
я мотолюбитель
like
good
bad
shockingly
24.04.2015 р. відповів для olegsuzuki  
answerview
Ролики  поставил с Баотиона 16мм  наружный, 12мм высота ( подпиливал перед установкой баотионовские, не влазили  в канавку) Оболочку с родных или точнее, с  тех что побились при вылете с вариатора  и потому могу дать  размер побитых роликов ,а и фотки можно вкинуть.


 Меряю ролики тех, что были забиты свинцом.Оказалось, что побились оболочки не все- три остались-12мм высота роликов, на всех трех.А вот диаметр на двух 16,05мм , а на третьем 15,70.Возможно раздались от свинца.
Ролики без оболочек диаметром стали меньше- 8мм
я мотолюбитель
Змінено: 24.04.2015 р., Nikanor
like
good
bad
shockingly
24.04.2015 р. відповів для Nikanor  
answerview
Ролики должны быть с ямахи (размеры 15-12),много нельзя так газовать с открытой крышкой вариатора не то первичный вал сцепления-торкдрайвера прикажет долго жить(может вырвать с крышки редуктора) .и нужны нормальные ролики и от них прийдется отталкиваться.Я вчера заварил трубу,так как выпотрошил катализатор сегодня поставлю и прокачусь,роликов полно так что можно поиграться с настройками вариатора.
ПРОДАМ ЗАПЧАСТИ НА Honda AF-34-35,б/у. в личку
like
good
bad
shockingly
24.04.2015 р. відповів для jaimond  
answerview
Задний вариатор точно джоговский- написано джог90, а на переднем ничего не прочитал 06_question
я мотолюбитель
like
good
bad
shockingly
24.04.2015 р. відповів для Nikanor  
answerview
Забыл спросить а Вы обкатку уже прошли? 02_sad
ПРОДАМ ЗАПЧАСТИ НА Honda AF-34-35,б/у. в личку
like
good
bad
shockingly
24.04.2015 р. відповів для jaimond  
answerview
Прошел -проторохтел на подножке ,в магазин ездил периодически  осень ,зиму.
Сейчас, вернее , на вчера на весь газ , по красной  неэкономной полосе и с грузом расход 4литра. 45_smoke
я мотолюбитель
like
good
bad
shockingly
24.04.2015 р. відповів для Nikanor  
answerview
можете сделать фото коммутатора и его подключение по проводам?
ПРОДАМ ЗАПЧАСТИ НА Honda AF-34-35,б/у. в личку
like
good
bad
shockingly
24.04.2015 р. відповів для jaimond  
answerview
Где фотки? 45_smoke
я мотолюбитель
like
good
bad
shockingly
24.04.2015 р. відповів для Nikanor  
answerview
Это я Вас просил сделать фото коммутатора и гайки коленвала,где они? 02_sad
ПРОДАМ ЗАПЧАСТИ НА Honda AF-34-35,б/у. в личку
like
good
bad
shockingly
25.04.2015 р. відповів для Nikanor  
answerview
Розвиднется и сделаю фото коммутатора.Схемы нету?
Вариатору переднему думаю попробовать небольшую экзекузию- свинец выбить с ранее стоявших трех уцелевших грузиков и на этих попробовать прокатиться.Позвоню к ювелиру,может взвешу у него грузики.Фотки вариаторной гайки сделаю в процессе  45_smoke

А так гайка переднего вариатора прикручена как на картинке, только в моей сборке шайбы 5 нету
я мотолюбитель
Змінено: 25.04.2015 р., Nikanor
Прикріплені зображеннявідкрити у галереї
like
good
bad
shockingly
25.04.2015 р. відповів для jaimond  
answerview
Шайбу от свечи ставлю  между втулкой и неподвижной щекой- грузики вылетают.Без  шайбы  как бы нормально и правильно. 06_question
я мотолюбитель
like
good
bad
shockingly
25.04.2015 р. відповів для Nikanor  
answerview
Завтра померяю длину втулки.
ПРОДАМ ЗАПЧАСТИ НА Honda AF-34-35,б/у. в личку
like
good
bad
shockingly
1••46474849505152••54
© 2001-2026, MOTO.com.ua - все про мотоцикли та скутери!   Зворотній зв'язок   Про нас   Реклама на сайті   Магазин